ソルフィエスタ堀切菖蒲園[堀切菖蒲園駅]
葛飾区堀切の築浅マンション~お引き渡し後の高性能リノベーション可能~
NEW!
	「ソルフィエスタ堀切菖蒲園」
	
令和3年築の築浅マンション!
周辺環境充実の3LDK
	 
令和3年築の築浅マンション!
周辺環境充実の3LDK
							物件詳細
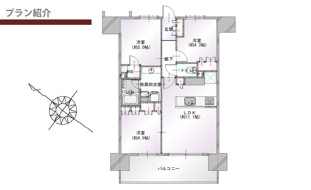
						京成本線「堀切菖蒲園」駅徒歩9分。2021年築の築浅マンション!3LDK+各居室収納+WICに、陽当たり抜群の南西向きバルコニーがついた魅力的なプラン。バルコニーからは、毎年夏に開催される隅田川花火大会を見ることもできます。また、浴室乾燥機や食洗器、IHコンロ、室内ランドリーハンガーを完備で快適にお住まいいただけます。その他、住民専用のラウンジやプライベートガーデン、24時間ゴミ置き場、不在時でも安心の宅配ボックスなど、共用設備も充実。受賞歴多数のセイズだからこそできる、デザインと性能を両立した高性能リノベーションも可能です!お気軽にお問い合わせください。
					周辺環境・ロケーション
				■堀切東公園(徒歩1分/約80m)→大きなタコの滑り台が特徴の公園。2024年にリニューアルされ、小さなお子様が楽しめる遊具が揃っています。
■リブレ京成堀切店(徒歩7分/約500m)
→京成ストアが運営する食品専門スーパー。品揃えが豊富で主婦層に人気を集めています。
■堀切菖蒲園(徒歩9分/約700m)
→約6000株が咲き誇る、江戸時代から続く花菖蒲の名所。毎年見頃の時期には「葛飾菖蒲まつり」も開催されます。
■赤札堂堀切店(徒歩10分/約750m)
→堀切菖蒲園駅前の地元民に人気のスーパー。22時まで営業しており、仕事帰りの買い物にも便利。

										------------------------------
										
								
											◆ 通算8回ハウスオブザイヤー受賞 ◆
											
											
												
													
													
													
												お問い合わせ・資料請求・見学予約はこちら
										
									
												家全体が夏涼しく冬暖かい、
光熱費も大幅削減できる
高気密・高断熱の省エネ住宅です。
(モデルハウスで体感できます)
											光熱費も大幅削減できる
高気密・高断熱の省エネ住宅です。
(モデルハウスで体感できます)
														【セイズが手掛けるリノベーション住宅】
~デザインと性能を両立:高耐震デザイナーズ~
													~デザインと性能を両立:高耐震デザイナーズ~
														通算8回ハウスオブザイヤー受賞のセイズだから実現できる、高気密・高断熱・高耐震のリノベーション住宅。カビ・ダニの抑制、花粉・PM2.5の侵入防止やヒートショック防止、シックハウス対策など、住まわれる方の健康にも配慮した住宅です。
													
														《セイズは地域密着25年》
													
														創業時より葛飾区・江戸川区を中心に城東エリアで地域密着。分譲物件多数。■通算8回ハウスオブザイヤー受賞 ■ZEHビルダー(プランナー評価:最高評価の6つ星) ■全棟BELS評価:最高等級 ■SW工法の施工棟数10年連続全国ナンバーワン!■東京ゼロエミ住宅
													
PLAN
間取りプラン
GALLERY
ギャラリー
LOCATION
周辺環境
- 黎明保育園(徒歩4分 / 270m)

 - 綾南小学校(徒歩7分 / 550m)

 - 堀切中学校(徒歩4分 / 280m)

 - 葛飾バンビこどもクリニック(徒歩4分 / 270m)

 - 堀切菖蒲園(徒歩9分 / 700m)

 - 堀切東公園(徒歩1分 / 80m)

 - ビッグ・エー葛飾宝町店(徒歩3分 / 200m)

 - リブレ京成 堀切店(徒歩7分 / 500m)

 - 赤札堂/DAISO堀切店(徒歩10分 / 750m)

 - どらっぐぱぱす四つ木平和橋通り店(徒歩5分 / 400m)

 - 葛飾堀切郵便局(徒歩10分 / 800m)

 - ローソン堀切店(徒歩1分 / 20m)

 
物件概要
| 所在地 | 東京都葛飾区堀切1丁目 | 
|---|---|
| 交通 | 京成本線「堀切菖蒲園」駅徒歩9分 | 
| 学校区 | 綾南小学校、堀切中学校 | 
| 総戸数 | 62戸 | 
| 所在階/階数 | 8階/地上14階建て | 
| 専有面積 | 54.37㎡(壁芯) | 
| バルコニー面積 | 11.25㎡ | 
| 築年月 | 2021年1月(築4年) | 
| 構造・工法 | 鉄筋コンクリート造 | 
| 管理形態及び管理員の勤務形態 | 全部委託管理 (日勤) | 
| 現況 | 居住中 | 
|---|---|
| 引渡時期 | 相談 | 
| 管理費等 | 9,200円/月 | 
| 修繕積立金 | 4,500円/月 | 
| 用途地域 | 準工業地域 | 
| 土地の権利形態 | 所有権 | 
| 取引態様 | 仲介(専任媒介) | 
| 情報更新日 | 2025年11月04日 | 
| 次回更新日 | 2025年11月18日 | 



          
      
